Maison des solidarités d'Auterive BDO Or
| 1 | 2 |
|---|---|
| Programme | Démolition et reconstruction de la Maison des solidarités d'Auterive |
| Lieu | Auterive (31) |
| Maîtrise d'ouvrage | Conseil Départemental de la Haute-Garonne |
| Phase | Études |
| Date | 2028 |
| Superficie | 740 m² |
| Budget | 2 920 000 € HT |
| Mission | Base + SSI + OPC + EXE partielles + BIM + Synthèse + Environnement + Exploitation |
| Équipe | Cousy Architectures (mandataire), BETEM (BET structure, fluides), URBALAB (BET VRD, paysage), TRANSITION INGENIERIE (environnement), ECOTEM (économie), EMACOUSTIC (acoustique) |
| Crédits | Lotoarchilab |
La future Maison des Solidarités d’Auterive incarne une réponse architecturale engagée face aux enjeux environnementaux contemporains. Le projet s’appuie sur les principes de compacité, de passivité, de frugalité et de rationalité afin de réduire l’empreinte carbone tout en garantissant des qualités d’usage élevées pour le public comme pour le personnel. Implanté sur une parcelle issue d’un ancien domaine arboré, le bâtiment s’inscrit dans une continuité paysagère forte, renforcée par des épaisseurs végétales accompagnant l’ensemble des usages.
Les aménagements extérieurs privilégient des sols perméables, des stationnements paysagers et une organisation organique entre les arbres, offrant fraîcheur, confort et apaisement. La structure en portiques bois constitue le principe majeur de composition et génère des espaces lisibles, chaleureux et baignés de lumière naturelle. La toiture, largement débordante et ventilée naturellement, participe au confort thermique, complétée par des protections solaires adaptées.
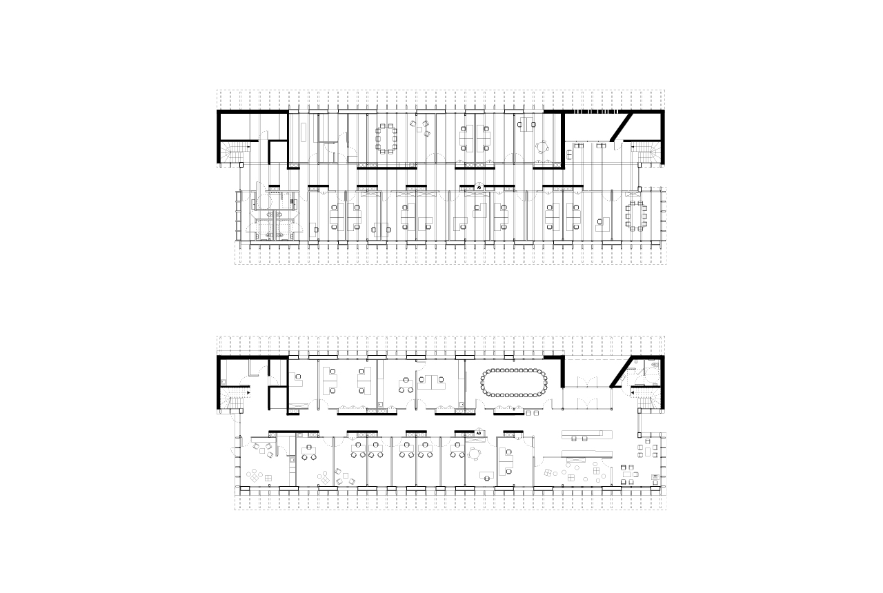
Le projet fait le choix assumé de matériaux naturels et bio-sourcés (bois local, paille, béton de terre, enduits de terre) utilisés pour leurs qualités intrinsèques et leur faible impact environnemental. Le bâtiment se développe sur deux niveaux identiques, à la lecture simple et fonctionnelle. Le niveau bas accueille principalement le public, avec des accès différenciés assurant lisibilité, confidentialité et qualité d’accueil. Le niveau supérieur reprend cette organisation, garantissant clarté et efficacité des circulations. L’ensemble traduit une architecture durable, sobre et bienveillante, pensée pour offrir aux usagers un cadre sécurisant, humain et profondément ancré dans son territoire.
infos +